Dixie Gardens 4 bedroom Single Family House For Sale
2442 Grant St, Hollywood, FL 33020

$539,000
Продано
Людмила Богатов
Людмила Богатов
Брокер по недвижимости

Детали


  • МЛС номер:A11863661
  • Виртуальный тур: Да
  • Цена предложения: $539,000
  • Цена продажи: $539,000
  • Жилая площадь: 1014 фут² / 94 м²
  • Цена за фут/метр: $532 / $5,722
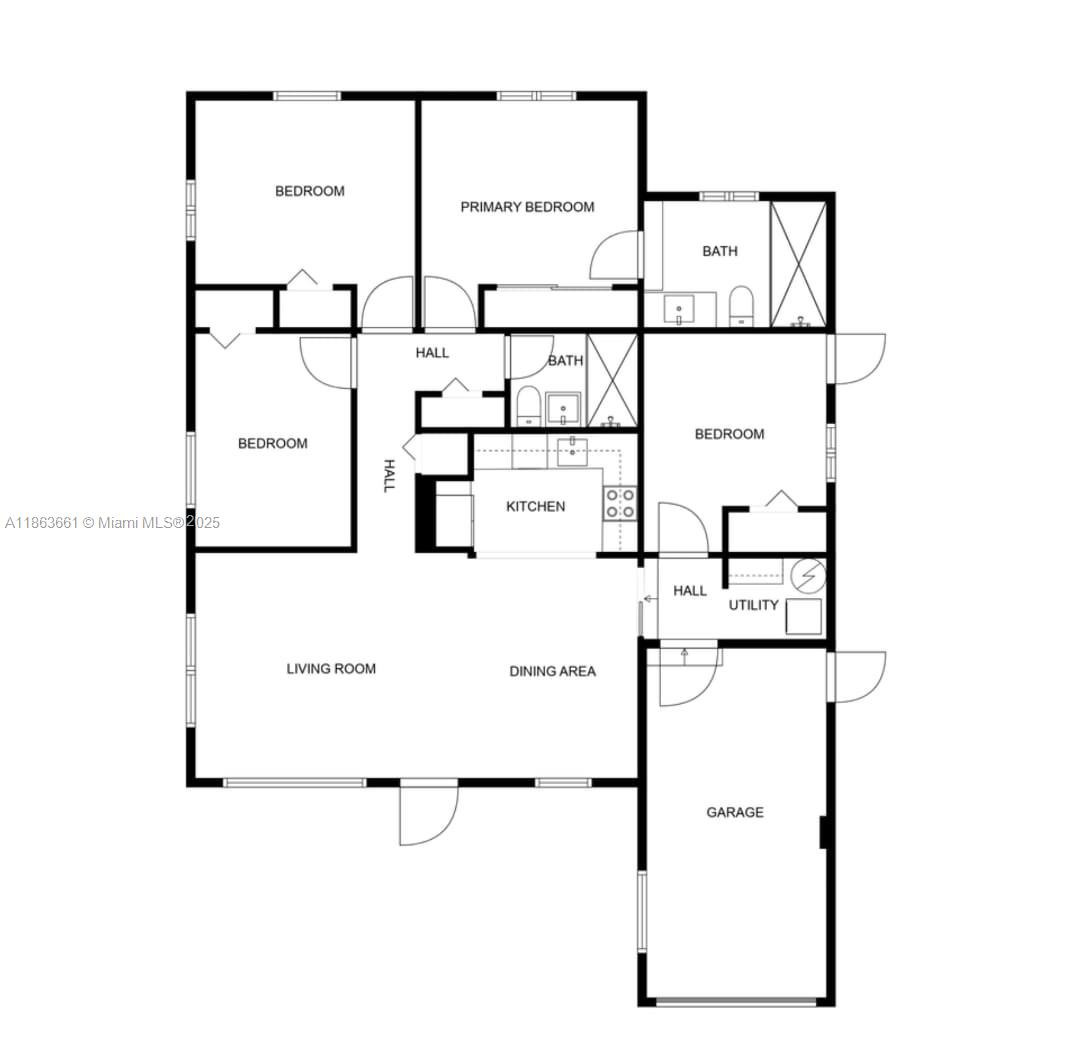
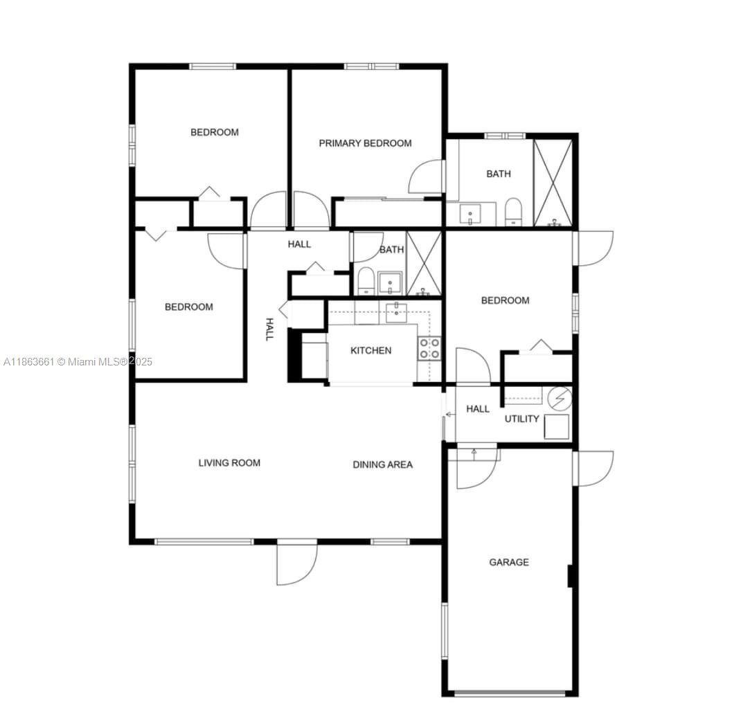
  • Комнаты:4
  • Полных ванн:2
  • Налоги:$6,170
  • Год строительства:1950
  • Дата публикации:August 22, 2025
  • Дата продажи: September 26, 2025
  • Дней на рынке:34

Описание


Fully remodeled 4 bedroom, 2 bathroom home in the heart of Hollywood. This property features all new finishes inside and out, including impact windows and doors, new appliances, modern kitchen, and upgraded bathrooms. Bright and open layout with plenty of natural light. Large backyard offers endless possibilities for entertaining or adding a pool. Prime location — just a quick 10-minute e-bike ride to Hollywood Beach, and minutes from the Hard Rock Casino, Downtown Hollywood, shopping, dining, and major highways. Move-in ready and designed for today’s lifestyle. 4 Bedrooms / 2 Bathrooms Fully Remodeled – Everything New Impact Windows & Doors Brand-New Appliances Open & Bright Layout Large Backyard – Room for Pool 8 Minutes to Hollywood Beach by E-Bike

Особенности


  • Полы:Vinyl
  • Интерьер:BedroomOnMainLevel, FirstFloorEntry, WalkInClosets
  • Экстерьер:Fence, FruitTrees, SecurityHighImpactDoors, Shed

Расположение


Запросить информацию
Людмила Богатов
Людмила Богатов
Брокер по недвижимости

Другие дома в Холливуд


2708 Cleveland St
Hollywood, FL 33020
$769,900
1935 Arthur St
Hollywood, FL 33020
$649,000
2661 Johnson St
Hollywood, FL 33020
$1,049,000
2665 Johnson St
Hollywood, FL 33020
$949,000