C Gab Country Club Sec 6 3 bedroom Single Family House For Sale
415 Velarde Ave, Coral Gables, FL 33134

$1,647,500
Продано
Людмила Богатов
Людмила Богатов
Брокер по недвижимости

Детали


  • МЛС номер:A11871233
  • Виртуальный тур: Да
  • Цена предложения: $1,699,000
  • Цена продажи: $1,647,500
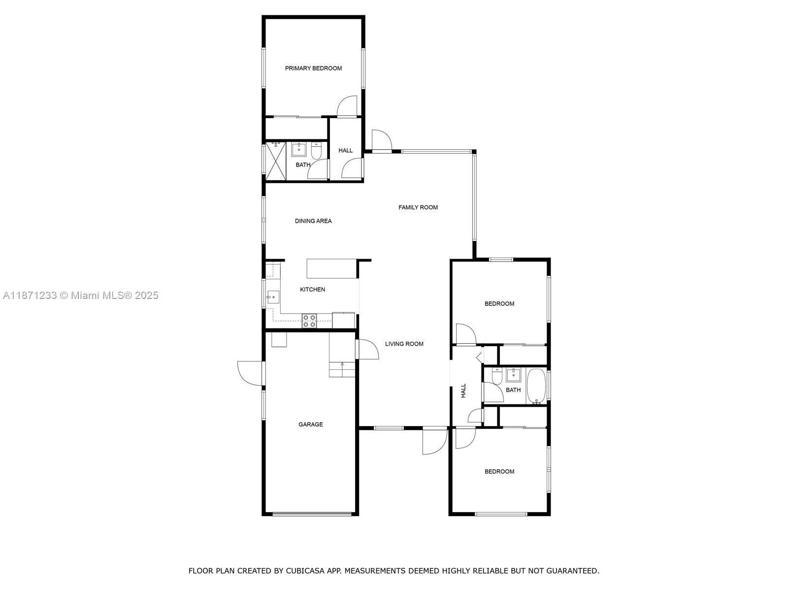
  • Жилая площадь: 1764 фут² / 164 м²
  • Цена за фут/метр: $934 / $10,053
  • Комнаты:3
  • Полных ванн:2
  • Налоги:$11,832
  • Год строительства:1955
  • Дата публикации:September 4, 2025
  • Дата продажи: October 10, 2025
  • Дней на рынке:35

Описание


Completely turn-key Gables pool home, walking distance to Merrick, CG Youth Center, Library & more. Bursting with color & creativity, this unique residence blends character with modern comfort. Nestled on a lushly landscaped lot with mature trees, this mid century gem boasts an ideal split bedroom floor plan & outdoor living area with a new pool, turf/natural grass and a private lounge area. A designer kitchen anchors the home, opening to the dining, living & window lined family room which is bathed in natural light. All major upgrades are completed: 2 year-old impact resistant windows & cement tile roof. All new plumbing, updated electrical, new paver driveway & 1-car garage w/ extra loft storage. Gables lifestyle at its finest: a thoughtfully upgraded home w/ easy access to everything!

Особенности


  • Полы:Hardwood, Terrazzo, Wood
  • Интерьер:BreakfastBar, BedroomOnMainLevel, FirstFloorEntry, LivingDiningRoom, MainLevelPrimary
  • Экстерьер:Fence, SecurityHighImpactDoors, Porch

Расположение


Запросить информацию
Людмила Богатов
Людмила Богатов
Брокер по недвижимости

Другие дома в Корал Гейблс


1119 Lisbon St
Coral Gables, FL 33134
$1,600,000
1425 Venetia Ave
Coral Gables, FL 33134
$1,350,000
1110 Wallace St
Coral Gables, FL 33134
$1,899,000
4756 Sw 7th St
Miami, FL 33134
$583,000