Lauderdale Isles No 2 Blk 2 bedroom Single Family House For Sale
2624 Nassau Ln, Fort Lauderdale, FL 33312

$725,000
Продано
Людмила Богатов
Людмила Богатов
Брокер по недвижимости

Детали


  • МЛС номер:A11890660
  • Виртуальный тур: Да
  • Цена предложения: $739,000
  • Цена продажи: $725,000
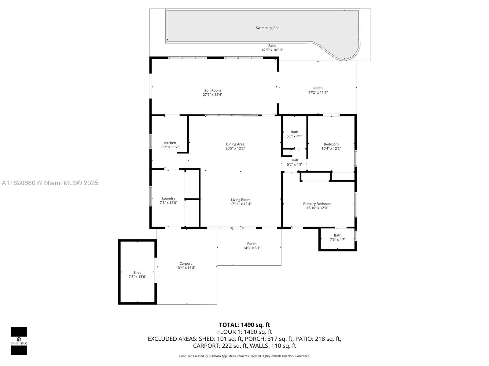
  • Жилая площадь: 1630 фут² / 151 м²
  • Цена за фут/метр: $445 / $4,788
  • Комнаты:2
  • Полных ванн:2
  • Налоги:$13,420
  • Год строительства:1956
  • На канале:Да
  • Дата публикации:October 6, 2025
  • Дата продажи: April 22, 2026
  • Дней на рынке:197

Описание


Beautiful South Florida home with 65 FEET OF WATERFRONT WITH NO FIXED BRIDGES offering easy access for boats of all sizes. This home features a bright, open floor plan with abundant natural light, a large pool, and a private dock—perfect for enjoying everything the water has to offer. Relax in the sunroom, entertain in the barbecue area, and make use of the covered carport and private laundry/storage room for everyday convenience. Located just minutes from Fort Lauderdale Beach, Las Olas dining/shopping, and major highways (I-595 & I-95), this home combines waterfront living with easy access to all the area has to offer.

Особенности


  • Полы:Concrete, Tile
  • Интерьер:BedroomOnMainLevel, FirstFloorEntry
  • Экстерьер:Barbecue, Patio
  • На канале:NoFixedBridges, OceanAccess

Расположение


Запросить информацию
Людмила Богатов
Людмила Богатов
Брокер по недвижимости

Другие дома в Форт Лодердейл


1032 Sw 15th Ter
Fort Lauderdale, FL 33312
$539,000

Fort Lauderdale, FL 33312
$600,000

Fort Lauderdale, FL 33312
$355,000
1464 Sw 29th Ave
Fort Lauderdale, FL 33312
$395,000