The Glades 5 bedroom Single Family House For Sale
1894 Aspen Ln, Weston, FL 33327

$1,175,000
Продано
Людмила Богатов
Людмила Богатов
Брокер по недвижимости

Детали


  • МЛС номер:A11906459
  • Виртуальный тур: Да
  • Цена предложения: $1,275,000
  • Цена продажи: $1,175,000
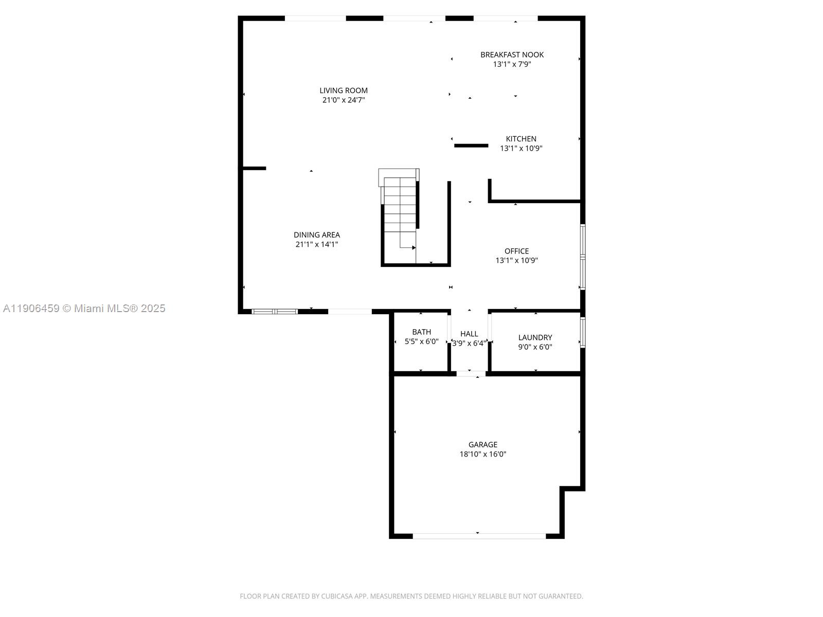
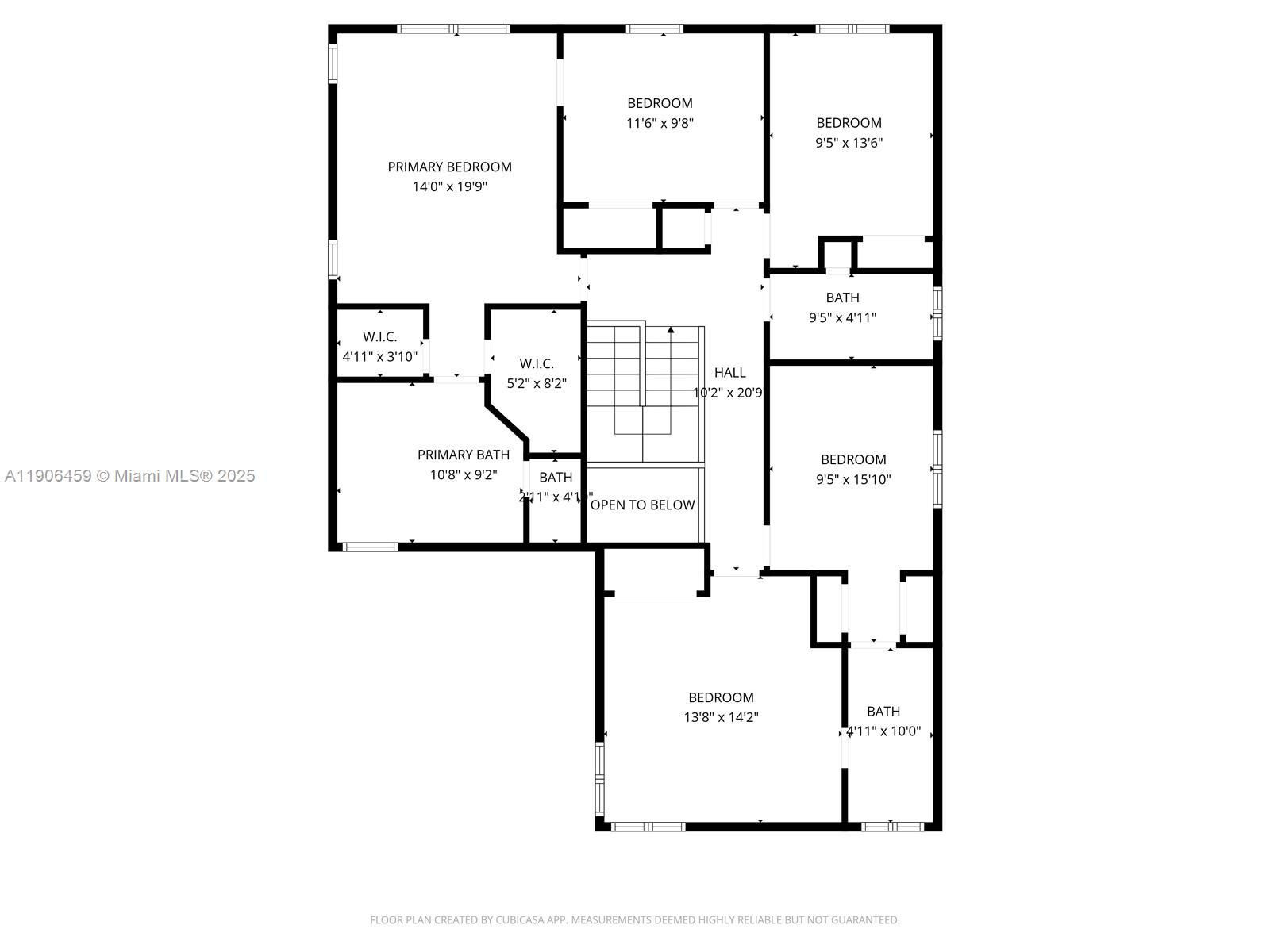
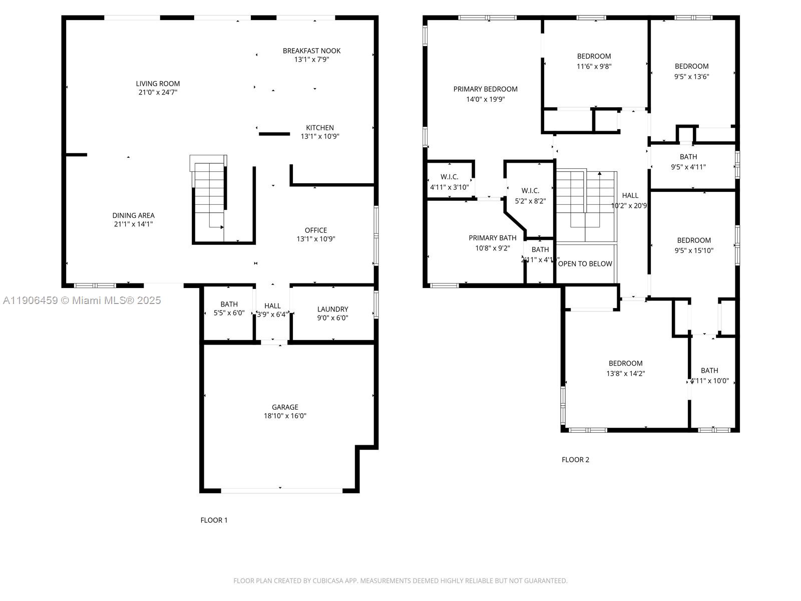
  • Жилая площадь: 2672 фут² / 248 м²
  • Цена за фут/метр: $440 / $4,733
  • Комнаты:5
  • Полных ванн:3
  • Неполных ванн:1
  • Обслуживание:$590
  • Налоги:$10,089
  • Год строительства:2001
  • На канале:Да
  • Дата публикации:November 7, 2025
  • Дата продажи: March 2, 2026
  • Дней на рынке:114

Описание


Come for the home, stay for the sunsets! Fully upgraded tropical retreat with heated/jetted saltwater pool, travertine deck, screened patio, and custom pergola with summer kitchen. Enjoy stunning canal sunsets and total privacy—no rear neighbors! New A/C (2025), water heater (2024), Cat 5 Hurricane Impact windows/doors, plantation shutters. Built-in garage storage system. Kitchen and all 4 baths remodeled, 24x24 Porcelanosa floors, laminate upstairs, crown molding. Expanded driveway fits 3 vehicles. Lush yard with mature fruit trees (mango, avocado, soursop, lime, banana, orange, coconut), herb garden, and privacy hedges. Guard-gated community with resort-style pools; Olympic lap pool, pickleball, mini golf, café, and A+ schools. A rare blend of elegance, comfort, and everyday paradise.

Особенности


  • Полы:Laminate, Tile
  • Интерьер:BreakfastBar, Bidet, BuiltInFeatures, ConvertibleBedroom, ClosetCabinetry, DiningArea, SeparateFormalDiningRoom, DualSinks, FrenchDoorsAtriumDoors, FirstFloorEntry, KitchenDiningCombo, LivingDiningRoom, Pantry, SeparateShower, UpperLevelPrimary, WalkInClosets, CentralVacuum
  • Экстерьер:Fence, FruitTrees, Lighting, OutdoorGrill, Patio, SecurityHighImpactDoors, StormSecurityShutters
  • На канале:CanalAccess, CanalFront

Расположение


Запросить информацию
Людмила Богатов
Людмила Богатов
Брокер по недвижимости

Другие дома в Вестон


1537 Victoria Isle Way
Weston, FL 33327
$2,299,900
1396 Victoria Isle Dr
Weston, FL 33327
$2,070,000
158 Dockside Cir
Weston, FL 33327
$1,750,000
1032 Silktree Ln
Weston, FL 33327
$935,000