Four Way Lodge Estates 4 bedroom Single Family House For Sale
3765 Carmen Ct, Coconut Grove, FL 33133

$2,850,000
Продано
Людмила Богатов
Людмила Богатов
Брокер по недвижимости

Детали


  • МЛС номер:A11914103
  • Виртуальный тур: Да
  • Цена предложения: $3,350,000
  • Цена продажи: $2,850,000
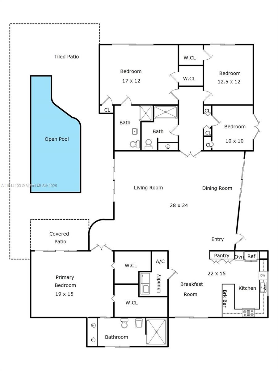
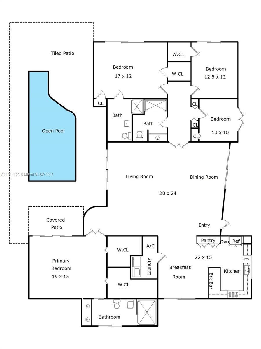
  • Жилая площадь: 2622 фут² / 244 м²
  • Цена за фут/метр: $1,087 / $11,700
  • Комнаты:4
  • Полных ванн:3
  • Налоги:$31,160
  • Год строительства:1936
  • Дата публикации:November 14, 2025
  • Дата продажи: January 27, 2026
  • Дней на рынке:73

Описание


Tucked within the guard-gated enclave of Four Way Lodge in South Coconut Grove lies a charming 4-bedroom, 3-bath bungalow. Nestled on a quiet cul-de-sac, the home offers privacy and peace of mind in Flood Zone X—no flood insurance required. Inside, the updated eat-in kitchen and stylishly renovated baths make this residence truly move-in ready. A newer roof, fresh paint, and inviting pool complement the delightful backyard—perfect for relaxation or play. The home offers generous storage throughout, including his-and-hers walk-in closets in the primary suite, plus a convenient laundry room just off the kitchen. Ideally located near top schools, houses of worship, and Coconut Grove’s best shopping and dining, this home is a true gem. Community boat basin w/ocean access. A Very Special Home.

Особенности


  • Полы:Tile
  • Интерьер:BreakfastBar, Bidet, BuiltInFeatures, BedroomOnMainLevel, BreakfastArea, ClosetCabinetry, EatInKitchen, FirstFloorEntry, LivingDiningRoom, SplitBedrooms, WalkInClosets
  • Экстерьер:Awnings, Fence, Lighting, StormSecurityShutters

Расположение


Запросить информацию
Людмила Богатов
Людмила Богатов
Брокер по недвижимости

Другие дома в Коконат Гроув


1815 Fairhaven Pl
Miami, FL 33133
$6,990,000
2145 Sw 26 St
Miami, FL 33133
$890,000
4065 Battersea Rd
Miami, FL 33133
$3,295,000
72 W Shore Dr W
Miami, FL 33133
$4,480,000