Coral Gab Sec D Rev Pl 3 bedroom Single Family House For Sale
2615 Alhambra Cir, Coral Gables, FL 33134

$2,900,000
Под контрактом Продажа
Людмила Богатов
Людмила Богатов
Брокер по недвижимости

Детали


  • МЛС номер:A11904990
  • Виртуальный тур: Да
  • Цена предложения: $2,900,000
  • Жилая площадь: 2878 фут² / 267 м²
  • Цена за фут/метр: $1,008 / $10,846
  • Комнаты:3
  • Полных ванн:3
  • Налоги:$10,042
  • Год строительства:1951
  • Дата публикации:November 14, 2025
  • Дней на рынке:182

Описание


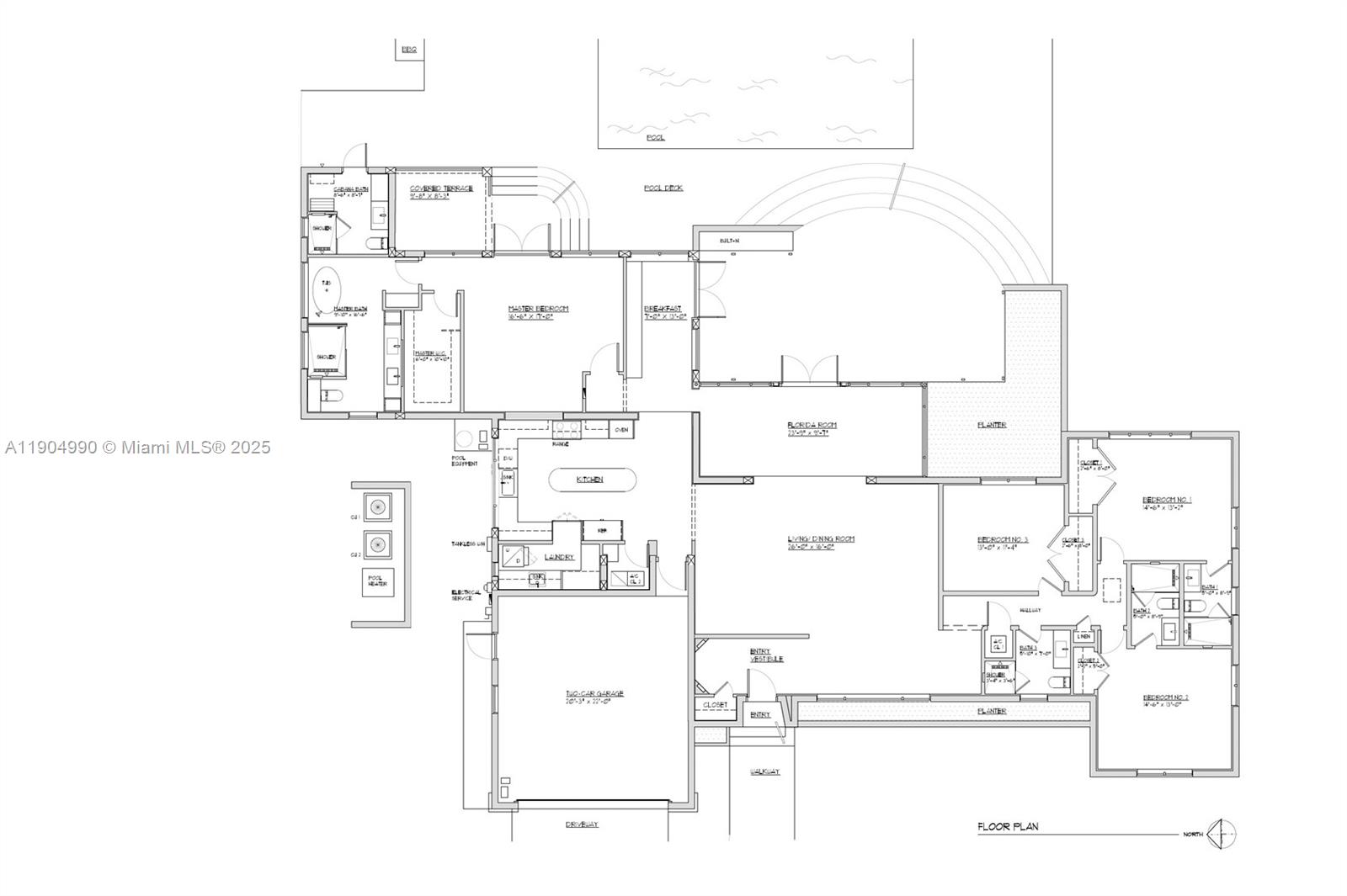
Nestled on a 22,500 sq ft lot in one of Coral Gables' most coveted neighborhoods, this 3-bedroom, 3-bathroom home has finished plans to become a 4-bedroom, 5-bathroom luxury home, a unique opportunity to create your dream estate. The property features spacious entertaining areas, a large terrace, a sparkling pool, and an expansive yard, ideal for outdoor gatherings or relaxation. Ideally located near the Biltmore Hotel, golf course, Little Flower Catholic Church, and top-rated schools, with a 2-car garage for added convenience, this property is practical and full of potential—a chance to own a slice of Coral Gables living.

Особенности


  • Полы:Hardwood, Parquet, Tile, Wood
  • Интерьер:DiningArea, SeparateFormalDiningRoom, FirstFloorEntry, KitchenDiningCombo, MainLevelPrimary
  • Экстерьер:Porch, Patio

Расположение


Запросить информацию
Людмила Богатов
Людмила Богатов
Брокер по недвижимости

Другие дома в Корал Гейблс


500 Sw 39th Ct
Miami, FL 33134
$1,600,000
4331 Sw 7th St
Miami, FL 33134
$760,000
909 Roderigo Ave
Coral Gables, FL 33134
$3,129,000
5181 Sw 5th St
Miami, FL 33134
$750,000