Colee Hammock 4 bedroom Single Family House For Sale
1601 Se 1st St, Fort Lauderdale, FL 33301

$1,700,000
Продано
Людмила Богатов
Людмила Богатов
Брокер по недвижимости

Детали


  • МЛС номер:A11914953
  • Виртуальный тур: Да
  • Цена предложения: $1,799,000
  • Цена продажи: $1,700,000
  • Жилая площадь: 2196 фут² / 204 м²
  • Цена за фут/метр: $774 / $8,333
  • Комнаты:4
  • Полных ванн:3
  • Налоги:$655
  • Год строительства:1997
  • Дата публикации:November 17, 2025
  • Дата продажи: December 29, 2025
  • Дней на рынке:41

Описание


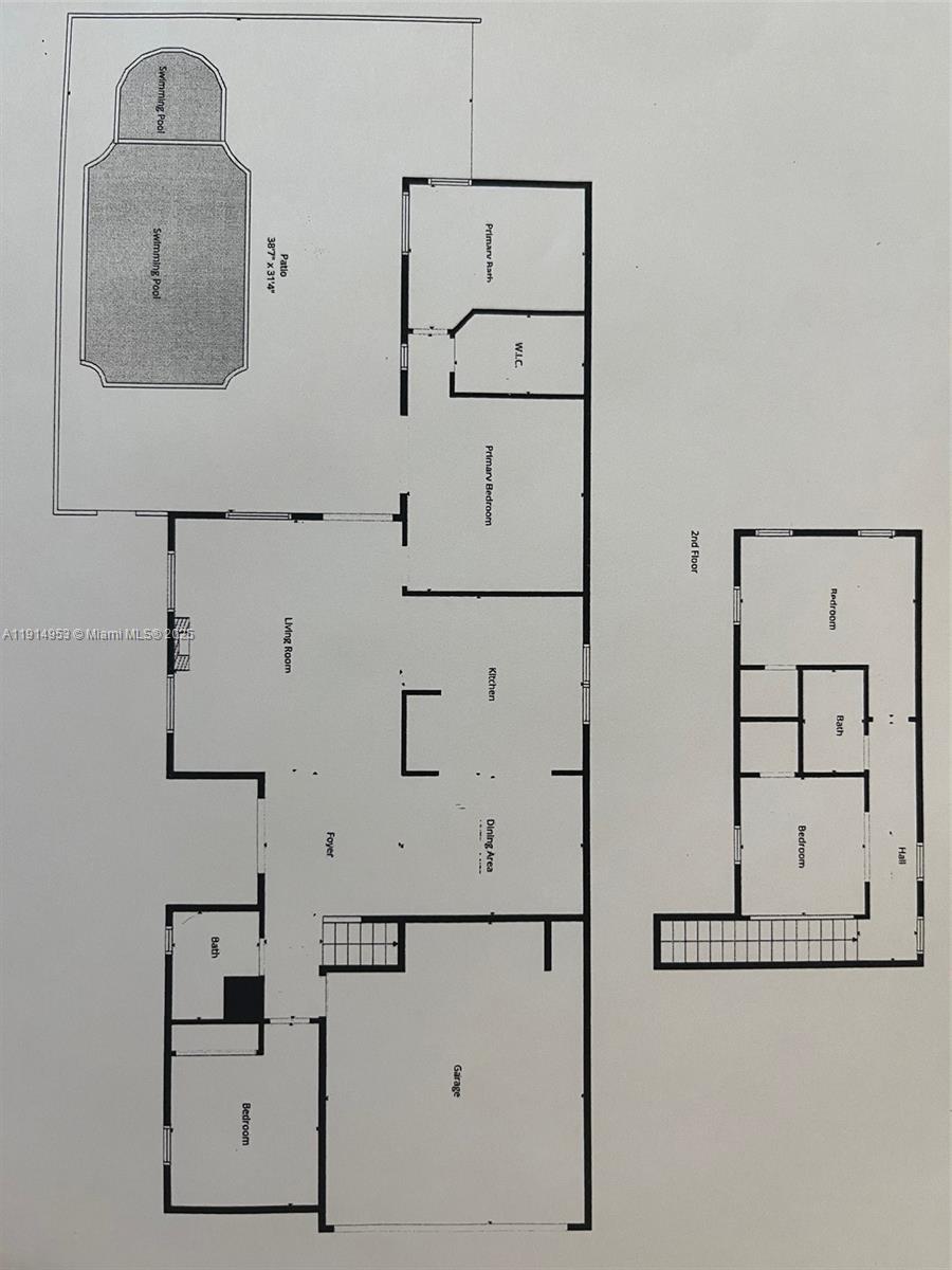
Remodeled corner lot 4/3 three blocks off Las Olas in Colee Hammock.Newer roof.Impact windows & doors.2 side loaded CG & expanded driveway.Custom gourmet kitchen w/50+ cabinets.Dining room w/large buffet/coffee station & wine cooler.Amazing resort style pool/patio/yard area w/hurricane grade Pergola.Roof opens & closes for comfort year around.Cost efficient gas heated pool w/newer pool finish&deck.Downstairs master suite w/remodeled bath w/soaking tub,zero step in shower,double vanity.Split plan w/addt'l bedroom down & remodeled bath w/walk in shower.Upstairs w/2 bedrooms (one w/pocket doors to hallway for use as loft) each w/walk in closet & remodeled bath.Other:Dbl door entry;Bahama shutters & silhouette blinds;newer AC motor & compressor;termite treatment;newer pool pump & washer/dryer

Особенности


  • Полы:Laminate, Tile
  • Интерьер:BedroomOnMainLevel, DiningArea, SeparateFormalDiningRoom, DualSinks, EntranceFoyer, FirstFloorEntry, GardenTubRomanTub, KitchenIsland, MainLevelPrimary, Pantry, SplitBedrooms, SeparateShower, WalkInClosets
  • Экстерьер:Deck, SecurityHighImpactDoors, Lighting, Patio

Расположение


Запросить информацию
Людмила Богатов
Людмила Богатов
Брокер по недвижимости

Другие дома в Форт Лодердейл


620 Solar Isle Dr
Fort Lauderdale, FL 33301
$6,900,000
1704 Ne 1st St
Fort Lauderdale, FL 33301
$2,387,500
321 Hendricks Isle
Fort Lauderdale, FL 33301
$3,800,000
323 Hendricks Isle
Fort Lauderdale, FL 33301
$3,800,000