Golden Shores Ocean Blvd 3 bedroom Single Family House For Sale
272 191st Ter, Sunny Isles Beach, FL 33160

$1,475,000
Под контрактом Продажа
Людмила Богатов
Людмила Богатов
Брокер по недвижимости

Детали


  • МЛС номер:A11918804
  • Виртуальный тур: Да
  • Цена предложения: $1,475,000
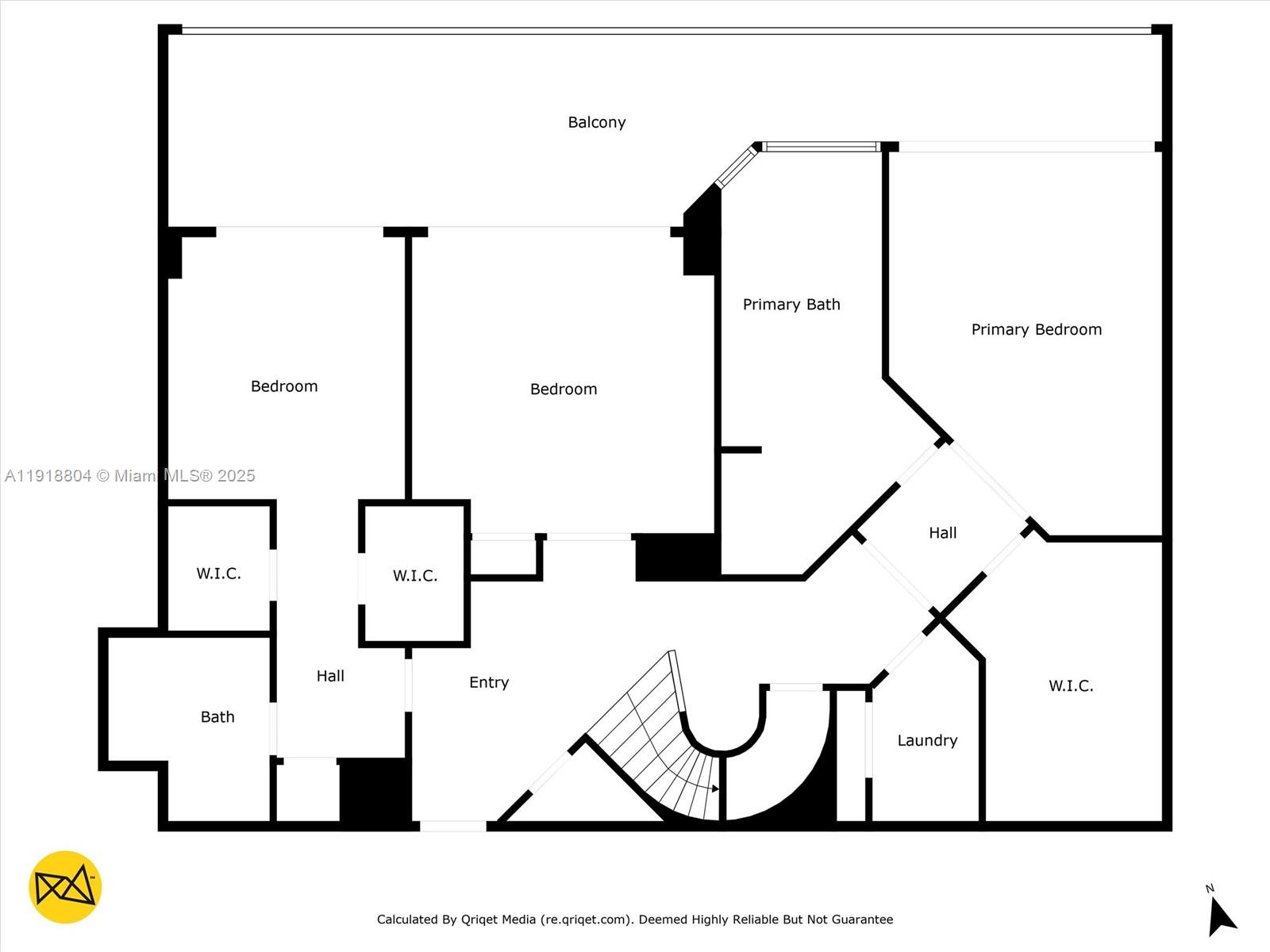
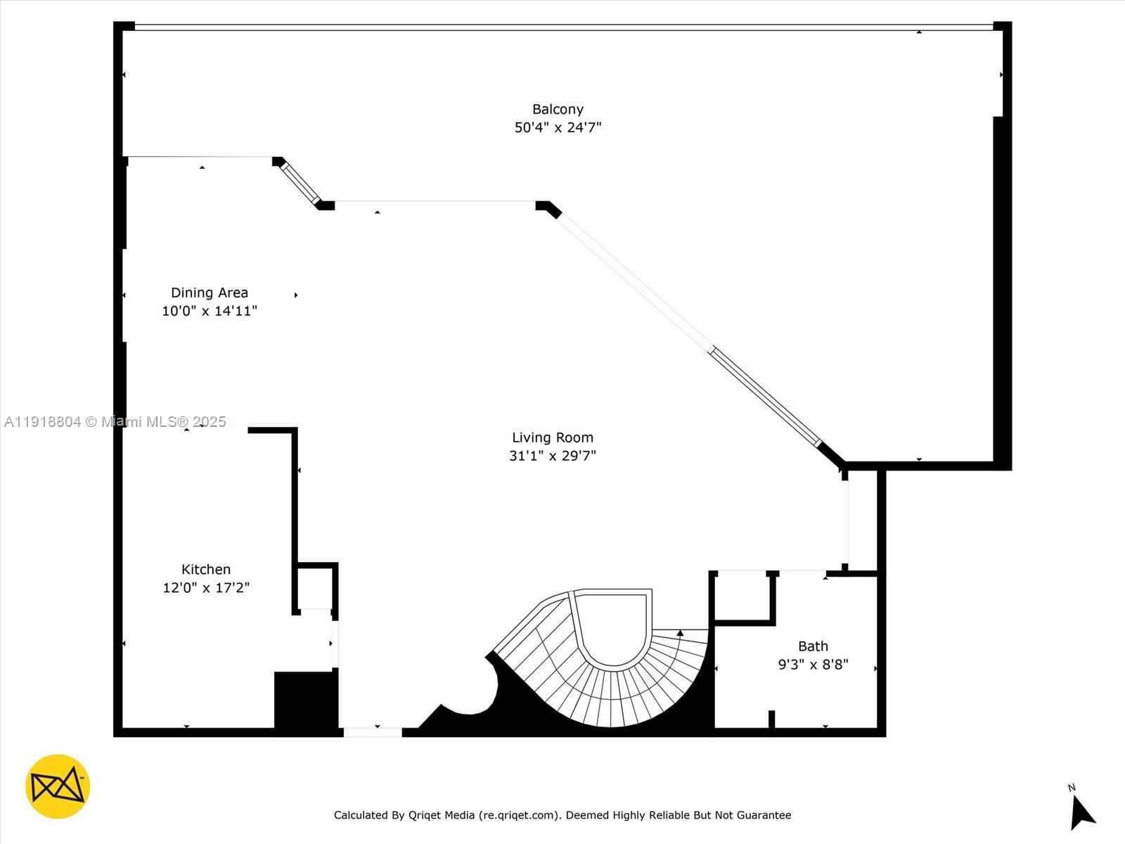
  • Жилая площадь: 1748 фут² / 162 м²
  • Цена за фут/метр: $844 / $9,083
  • Комнаты:3
  • Полных ванн:2
  • Налоги:$19,117
  • Год строительства:1991
  • Дата публикации:November 22, 2025
  • Дней на рынке:189

Описание


Beautiful elevated single-family home in Sunny Isles Beach! This charming residence offers just under 1,800 sq ft under AC plus an oversized 600 sq ft garage that’s perfect for converting into an additional bedroom, bathroom, home office, gym, or guest suite. Built in 1992, the home features modern PVC plumbing and a well-maintained Spanish-tile roof in excellent condition. Inside, the layout is spacious and functional, ready for light renovation or modernization to suit your taste. One of the standout features is the home’s high elevation, noticeably higher than neighboring properties, providing exceptional peace of mind during heavy rains. The lot is beautifully landscaped with mature mango, banana, lemon, and avocado trees, creating a private backyard oasis with plenty of room for outdoor living, gardening, or a future pool. Additional features include a large multi-car driveway, excellent curb appeal, and no HOA, giving you full flexibility for parking, pets, and exterior improvements. Located in the highly desirable Golden Shores neighborhood of Sunny Isles Beach, this home is just minutes from world-class beaches, parks, top-rated schools, restaurants, and shopping. A rare opportunity to own an elevated coastal home with incredible potential in one of South Florida’s most sought-after communities.

Особенности


  • Полы:Tile
  • Интерьер:BedroomOnMainLevel, FirstFloorEntry
  • Экстерьер:Deck, FruitTrees, Lighting

Расположение


Запросить информацию
Людмила Богатов
Людмила Богатов
Брокер по недвижимости

Другие дома в Hollywood


2465 Ne 184th St
North Miami Beach, FL 33160
$530,000
205 Ocean Blvd
Golden Beach, FL 33160
$39,870,000
2930 Ne 164th St
North Miami Beach, FL 33160
$2,890,000
343 190th St
Sunny Isles Beach, FL 33160
$2,995,000