Plantation Golf Estates 1 4 bedroom Single Family House For Sale
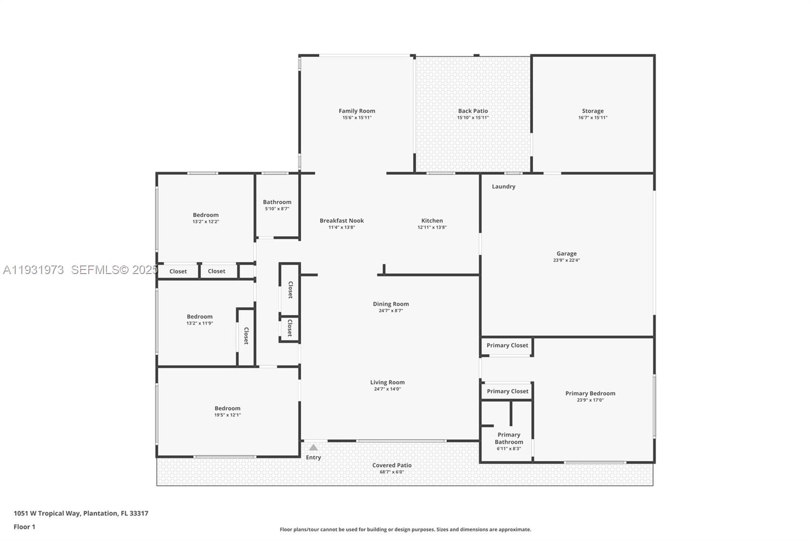
1051 W Tropical Way, Plantation, FL 33317

$770,000
Продано
Людмила Богатов
Людмила Богатов
Брокер по недвижимости

Детали


  • МЛС номер:A11931973
  • Виртуальный тур: Да
  • Цена предложения: $770,000
  • Цена продажи: $770,000
  • Жилая площадь: 2578 фут² / 240 м²
  • Цена за фут/метр: $299 / $3,215
  • Комнаты:4
  • Полных ванн:2
  • Налоги:$8,729
  • Год строительства:1960
  • На канале:Да
  • Дата публикации:December 17, 2025
  • Дата продажи: March 13, 2026
  • Дней на рынке:85

Описание


Located on W Tropical Way, one of Plantation’s most prestigious streets, this waterfront home offers privacy and flexibility in a no HOA community. The home features an updated kitchen, open family room with fireplace, and patio doors leading outdoors for seamless indoor-outdoor living. Impact windows throughout most of the home, with shutters included, provide added peace of mind. The tranquil waterfront setting enhances everyday living, with ample space for boat or RV parking, a common benefit in this neighborhood. The surrounding community is home to the Plantation Preserve Golf Course & Park, offering Everglades-inspired scenery, wetlands, cypress trees, and a 1-mile multi-use trail for walking and biking. Located close to shopping, schools, and parks.

Особенности


  • Полы:Carpet, Laminate, Tile
  • Интерьер:BreakfastBar, BuiltInFeatures, BedroomOnMainLevel, ClosetCabinetry, DiningArea, SeparateFormalDiningRoom, EatInKitchen, FirstFloorEntry, Fireplace, HighCeilings, KitchenIsland, MainLevelPrimary, Pantry
  • Экстерьер:Deck, Lighting, Porch, Patio
  • На канале:CanalFront

Расположение


Запросить информацию
Людмила Богатов
Людмила Богатов
Брокер по недвижимости

Другие дома в Плантейшен


6091 Sw 14th St
Plantation, FL 33317
$980,000
400 Farmington Dr
Plantation, FL 33317
$1,775,000
7306 Nw 1st Mnr
Plantation, FL 33317
$565,000
4053 Sw 8th St
Plantation, FL 33317
$1,150,000