El Portal Sec 2 5 bedroom Single Family House For Sale
144 Ne 91st St, Miami Shores, FL 33138

$1,275,000
Под контрактом Продажа
Людмила Богатов
Людмила Богатов
Брокер по недвижимости

Детали


  • МЛС номер:A11985024
  • Виртуальный тур: Да
  • Цена предложения: $1,275,000
  • Жилая площадь: 2431 фут² / 226 м²
  • Цена за фут/метр: $524 / $5,645
  • Комнаты:5
  • Полных ванн:4
  • Налоги:$12,655
  • Год строительства:1925
  • Дата публикации:March 18, 2026
  • Дней на рынке:42

Описание


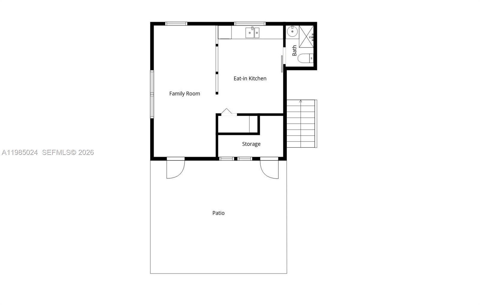
One property. Three distinct living spaces—a main house plus a two-story guest house with two separate guest units! Welcome to Villa Serenata—a rare 1925 Mission-style compound in Miami Shores offering a 3BD/2BA main residence and a detached two-story casita with TWO fully independent units—ideal for multigenerational living, guests, home office, fitness, or more. Much like a serenade drifting through the evening air, this romantic Mediterranean-inspired retreat unfolds with graceful rhythm, warmth, and timeless architectural detail. The 1,463 SF main home features bamboo wood floors, a sun-filled Florida room perfect for a lounge or office, and a living room with original fireplace and elegant columned archway leading to the formal dining area. The updated kitchen includes marble countertops, a breakfast bar, and a bright window-wrapped breakfast nook. Outdoors, enjoy a lush oak-canopied entertaining oasis with an entertainment esplanade, plenty of green space, and room for a pool. The 800 SF two-story casita offers two separate legal “apartments” with updated baths and kitchenettes plus storage. All in a fantastic non-flood zone location, just blocks to Downtown Miami Shores.

Особенности


  • Полы:Hardwood, Tile, Vinyl, Wood
  • Интерьер:BedroomOnMainLevel, FirstFloorEntry
  • Экстерьер:Fence, SecurityHighImpactDoors, Lighting, Patio, RoomForPool

Виртуальный тур


Расположение


Запросить информацию
Людмила Богатов
Людмила Богатов
Брокер по недвижимости

Другие дома в Майами Шорс


390 Ne 103rd St
Miami Shores, FL 33138
$1,875,000
895 Ne 76th St
Miami, FL 33138
$7,730,000
124 Ne 96th St
Miami Shores, FL 33138
$2,999,999
967 Ne 78th St
Miami, FL 33138
$4,495,000