Hollywood Estates For Sale
1917 Harding St, Hollywood, FL 33020

$715,000
Продажа
Людмила Богатов
Людмила Богатов
Брокер по недвижимости

Детали


  • МЛС номер:A11798082
  • Виртуальный тур: Да
  • Цена предложения: $715,000
  • Налоги:$8,515
  • Дата публикации:May 6, 2025
  • Дней на рынке:356

Описание


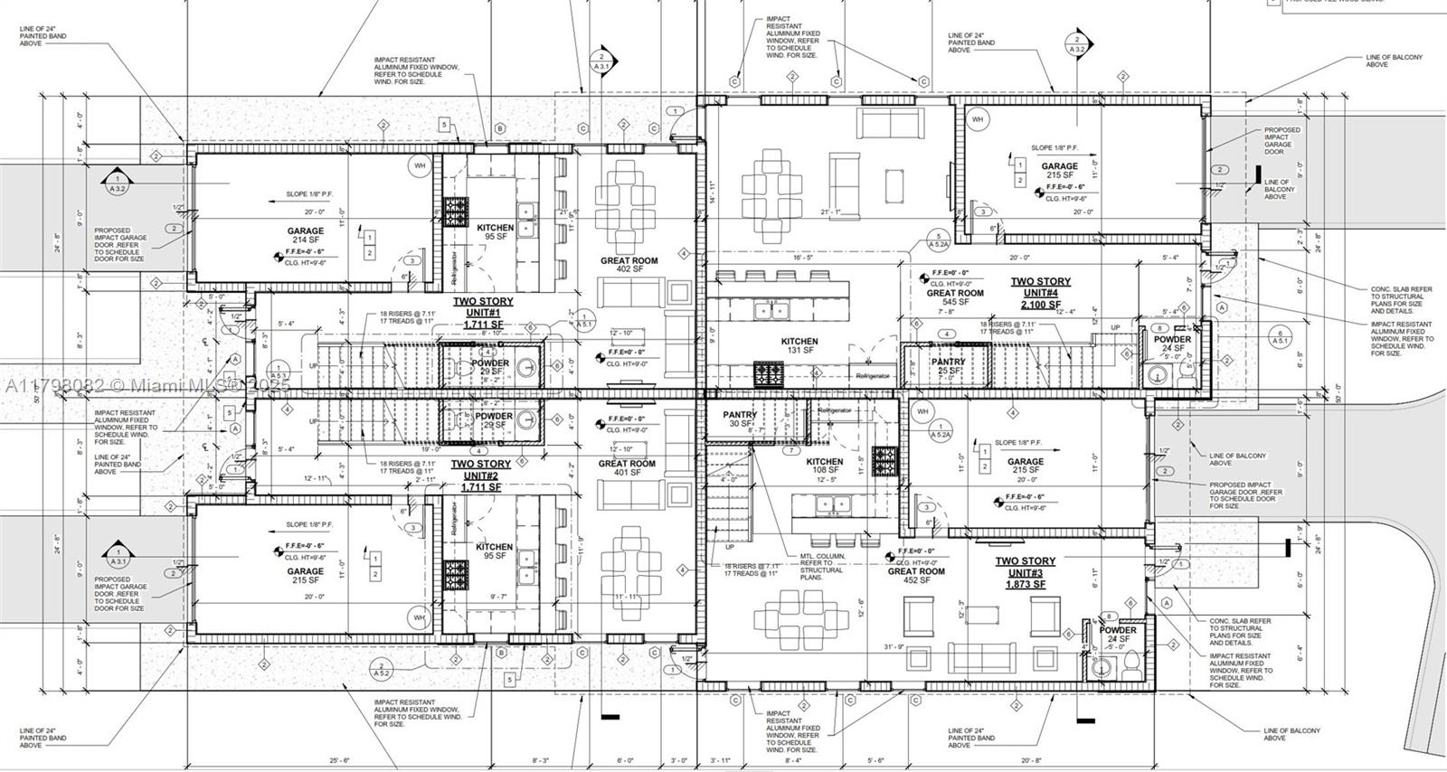
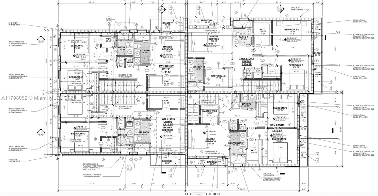
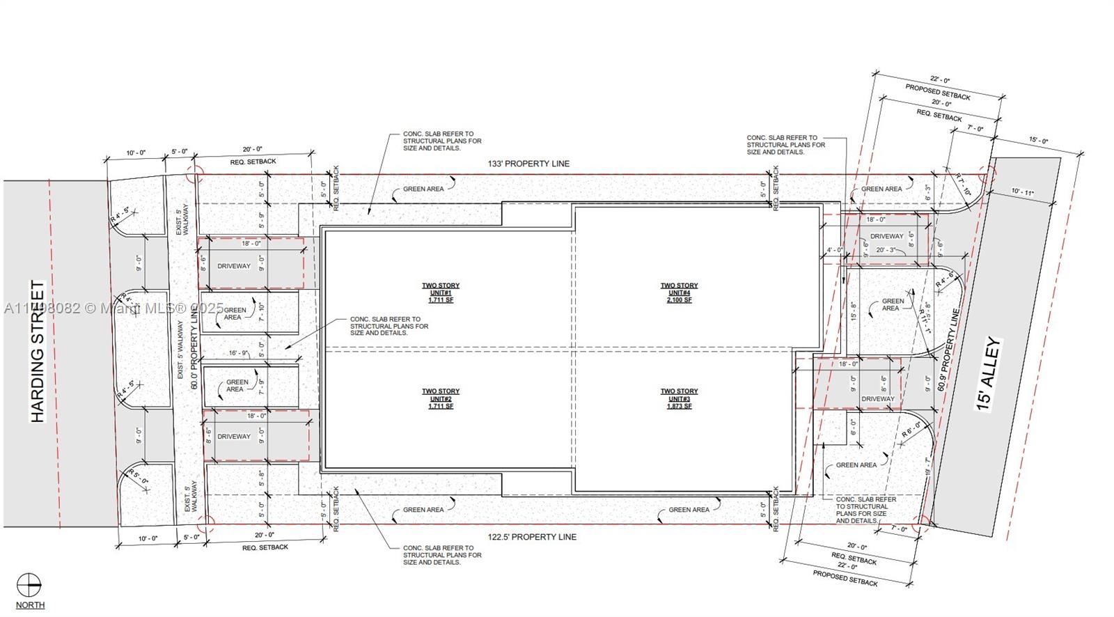
Approved plans with construction documents to build a 4-unit building. All units are 3-bedroom 2.5 bathrooms, plus a garage. The total living area is 5,964 sq ft, and the total gross area is 7395 sq ft. Plans are attached.

Расположение


Запросить информацию
Людмила Богатов
Людмила Богатов
Брокер по недвижимости

Другие участки и земля в Холливуд


1741 Dewey St
Hollywood, FL 33020
$1,849,000
2202 Van Buren St
Hollywood, FL 33020
$2,200,000
1601 N 16th Ct
Hollywood, FL 33020
$559,000
2247 Jackson St
Hollywood, FL 33020
$1,200,000